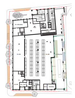
We are pleased to have assisted our client in gaining approval for the redevelopment of their commercial site in the Old Kent Road Opportunity Area to provide 253 residential units located above 3,500sqm of industrial floor space.
The scheme has been carefully designed to minimise any conflicts between users and ensures that delivery and servicing arrangements will not compromise the quality of residential accommodation that can be provided. We have now advised on a number of similar schemes across London that have successfully proposed this model.
See our earlier article on Strategic Industrial Land for our approach to these schemes and successful delivery.
